宇都宮市西川田町 jigsaw東棟 モデル建売
-
価格
3,440万円(税込)
-
所在地
宇都宮市西川田町
-
間取り
3LDK
ホワイトのガルバリウム外壁にシンプルなボックス型が爽やかな外観。
内観には無垢材をふんだんに使用し、木のぬくもりを感じる北欧風デザインです。
高性能×デザイン×快適な間取りを叶えました。
-
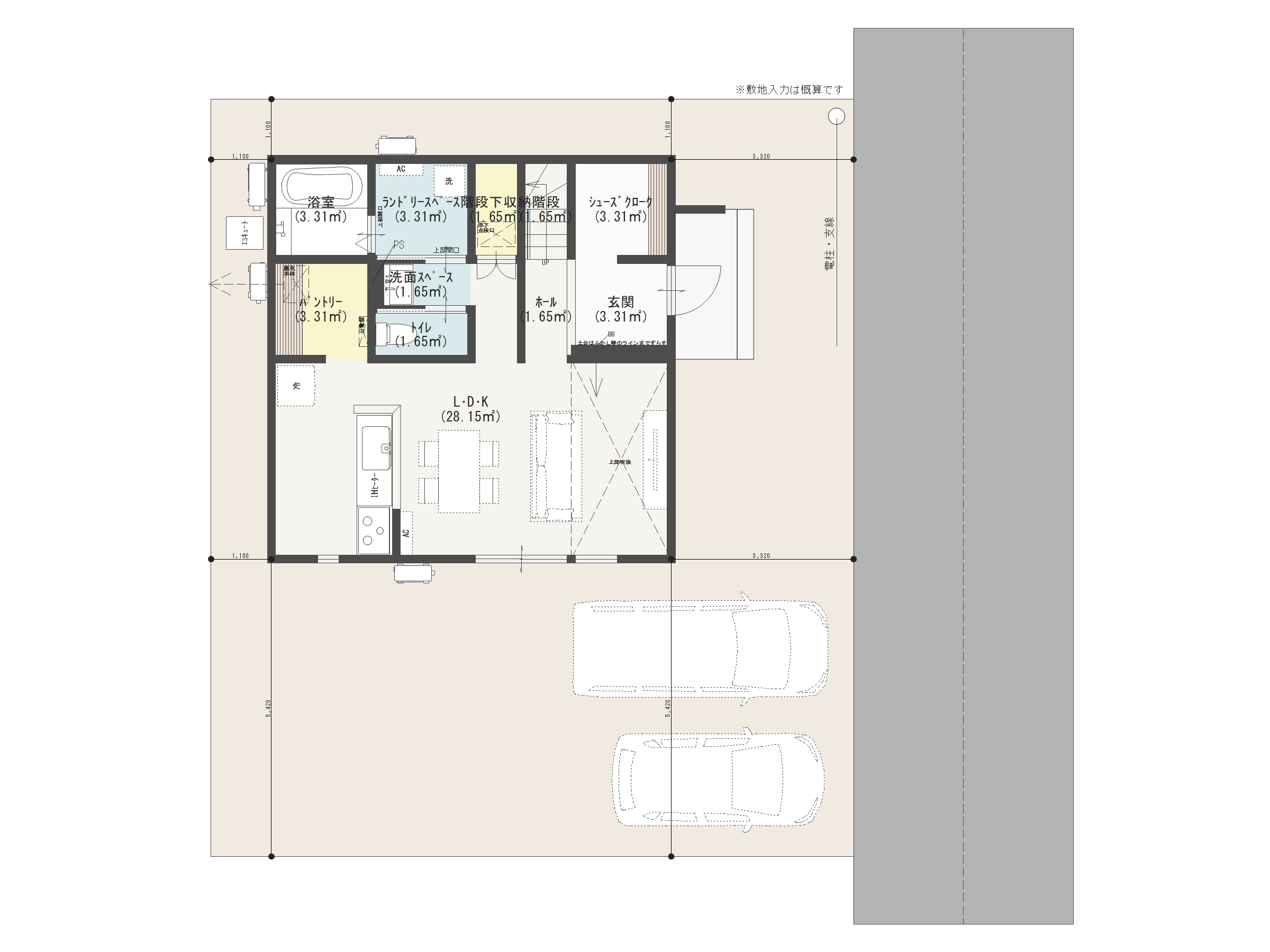
■魅せる空間が叶うLDK
居住スペースとその他のスペースがすっきりと切り分けられた間取りで、叶えたいお気に入りの空間を作り上げる事が出来ます。 -
■オシャレなニッチ
キッチン壁にニッチを設置。お気に入りの雑貨を飾って楽しい食卓に。 -
■最新キッチンで家事ラク♪
食器乾燥機付き食洗器完備で毎日の家事ストレスも軽減。明り取りの窓を設置することで明るいキッチンになっています。 -
■大容量パントリーでしっかりストック
キッチンサイドには収納場所に悩まず必要なストックがたっぷり置けるパントリー。災害時の備えにも。
-
■大容量の造作カフェボード
大容量の収納と、ごみ箱置場をしっかり確保しました。 -
■タイルがカワイイ洗面台
アースカラーのタイルが映える洗面台。収納もたっぷり。 -
■ランドリールーム&脱衣スペース
テイストに合わせた造作棚を設置。タオルや洗剤、洗濯物の仕分けなど置き場所に困りません。
-
■階段を上がった先に見える開放的な空間
2階への階段を登りきると吹抜けに設置された窓からの日の光と景色が見え、心地よい空間が広がります。 -
■外構イメージ
車2台が停められるので他に駐車場を借りる必要がなく安心。
アクセス
周辺環境
※表示されている所要時間は、80m/分を基準として算出しています。
物件概要
| 価格 | 3,440万円(税込) | 建ぺい率・容積率 | 60%・160% |
|---|---|---|---|
| 販売戸数 | 1戸 | 間取り | 3LDK |
| 所在地 | 宇都宮市西川田町 | 建物面積 | 99.36㎡(約30.05坪) |
| 土地面積 | 161.61㎡(約48.88坪) | 完成時期 | 2025年3月 |
| 交通 | 東武宇都宮線「江曽島駅」徒歩10分 | 販売スケジュール | 販売中 |
| 私道負担・道路 | 東4m幅、私道負担無 | 土地の権利形態 | 所有権 |
| 取引態様 | 売主 | 諸費用 | 別途 |
| 構造・工法 | 木造2階建て | 施工 | 木造軸組工法 |
| リフォーム | 引き渡し可能時期 | 即引渡し可能 | |
| 用途地域 | 第一種住居地域 | 地目 | 宅地 |
| その他制限事項 | ●太陽光発電システムについてはリース契約になります。リース契約期間は15年間。月々4、980円(税込)がかかります。期間終了後は無償譲渡されます。 ※詳細は営業担当にお問い合わせください。 | その他概要・特記事項 | 設備: 公営水道、本下水、オール電化 施工会社:K-LIVING (株)川堀工務店 /建築確認番号:第 SKA024-11-0530号/BELS/省エネ基準適合認定書あり/太陽光発電システム/高気密高断熱住宅/地盤調査済/駐車2台可/2沿線以上利用可/省エネ給湯器/市街地が近い/南向き/システムキッチン/陽当り良好/閑静な住宅地/LDK15畳以上/シャワー付洗面化粧台/対面式キッチン/トイレ2ヶ所/自然素材使用/浴室1坪以上/2階建/複層ガラス/オートバス/温水洗浄便座/南庭/吹抜け/TVモニタ付インターホン/節水型トイレ/パントリー(食器・食品の収納庫)/ウォークインクローゼット/IHクッキングヒーター/リビング階段/シューズインクローク/食器洗乾燥機/オール電化/スマートキー/高機能トイレ |
| 情報登録日 | 2025年3月5日 (水) | 次回更新日 |